площадью 747,90 м2, по цене 150000000 по адресу Люберцы - Шоссейная улица,42с2

Цена 150 000 000 р.
Адрес Люберцы, Шоссейная улица,42с2
Площадь помещения 747,9 м2
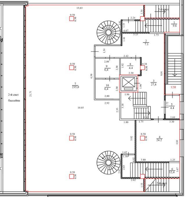
Продается двухэтажное помещение фитнес-центра с бассейном. Помещение встроено в стилобатную часть жилого комплекса «Либерти» (заселен в 1 квартале 2025 года). 1-е фото планировки — 1 этаж, 2-е фото планировки — 2 этаж. Проектом предусмотрены все необходимые зоны: — бассейн 5.4 х 18 м на 3 дорожки — хамам, сауна — раздевалки, душевые, санузлы — тренажерный зал и прочие функциональные помещения Отдельный выход в подземный паркинг. Все инженерные системы заведены, предусмотрена возможность размещения оборудования под конкретные задачи. На территории ЖК действует система видеонаблюдения и охраны — «Безопасный город». Спортивный комплекс рассчитан на жителей комплекса «Либерти» и ближайших жилых районов. В локации нет аналогов по уровню оснащения — высокий спрос со стороны будущих клиентов гарантирован. Условия продажи: — Полная стоимость в договоре — Возможна ипотека и рассрочка Подходит для инвестиций, открытия собственного фитнес-центра или сдачи в аренду специализированному оператору. Готовы обсудить детали и показать помещение — обращайтесь!
Объявление № 22284662
Дата подачи:
21 мая 2025 г. 2:28
Дата обновления:
20 мая 2025 г. 4:00
Просмотров 9 Хотите продать быстрее?

Продавец
Дмитрий
Показать номер телефона
Пожаловаться
Комментарии:
Добавить